Archwerk Generalplaner KG

Wohn­haus H

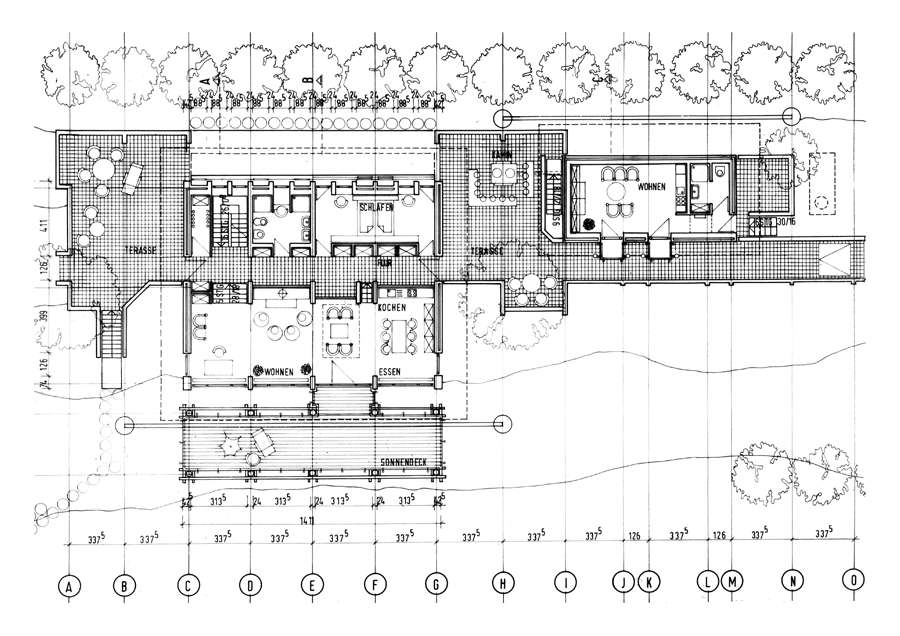
Villa

Bad Breisig – DE

1976

Settled

Privat

PROGRAM

VOLUME

LOCATION

YEAR

STATUS

CLIENT

Einfamilienhaus für eine:n Privatauftraggeber:in

 

Preise

6. Int. Architekturpreis ‚ac‘ 1980

Dt. Architekturpreis ‚KS‘ 1970

 

Veröffentlichungen

Stadtführer zeitgen. Architektur Rhein-Sieg 2004
Jap. Magazin ‚From The Kitchen‘ 1990 5 Vol. 8
‚Das Haus in dem wir Wohnen‘ 1978
Zuhause 10/73 Heft 10; KS Neues 3/72,
KS Neues 3/70; Wohnen unter schrägen Dächern
AC International, Häuser am Hang, Baumeister, DB

Prof. Wolfgang Krenz Architekt:innen

Prinz-Regent-Straße 50-60

44795 Bochum, DE

fon 0234‌ 541 612 0

www.archwerk.org

mail@archwerk.org