Wohnhaus K
Housing
–
Königswinter – DE
1968
Settled
Privat
PROGRAM
VOLUME
LOCATION
YEAR
STATUS
CLIENT
Preise
6. Internationaler Architekturpreis ‚ac‘
(Auszeichnung) 1980
Deutscher Architekturpreis ‚KS‘
(Auszeichnung) 1970
57 Jahre ist der Entwurf alt, trotzdem oder gerade deswegen strahlt das Haus eine bemerkenswerte Frische aus.
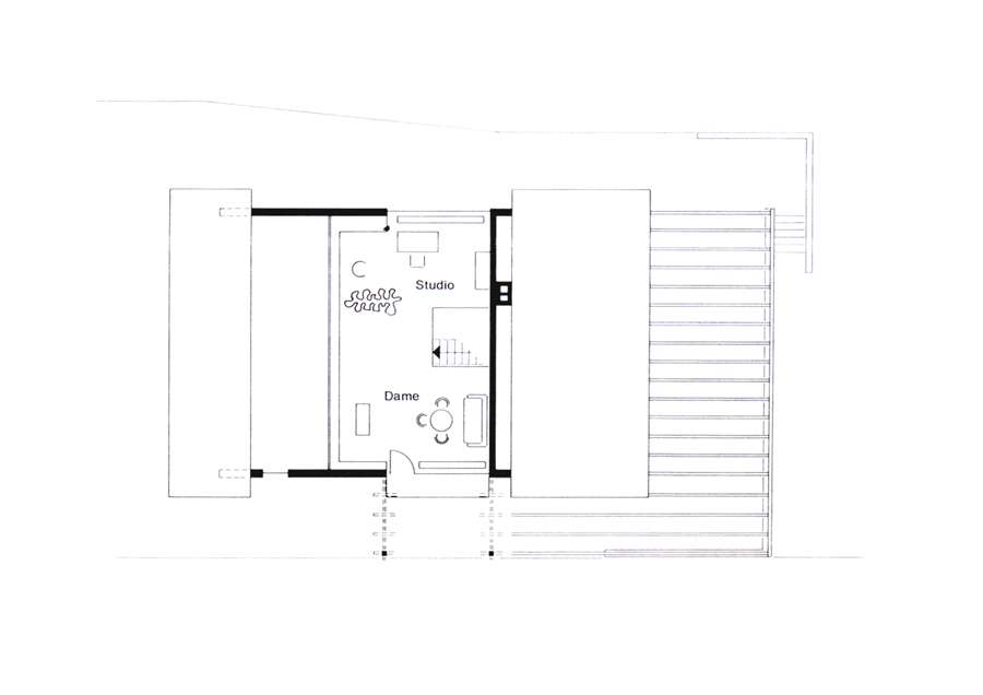
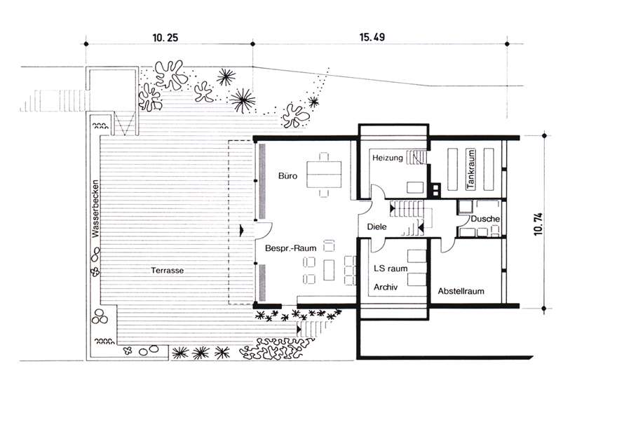
Ziel des Entwurfes war die optimale optische Integration des Hauses in die Rhein-Hügellandschaft. Die Lösung: zwei Pultdächer, die sich den Hang hinaufstaffeln. Darunter entstand eine eineinhalbgeschossige Wohnung, die räumlich aus dem natürlichen Gefälle des Hanges Kapital schlägt.
Von seiner Organisation her ist der Entwurf ein Beispiel für ein Denken, das ein Haus mit einer Stadtlandschaft gleichsetzt (vgl. Aldo van Eyck: ,,A house is a city, a city is a house“.) So gibt es hier einen „Boulevard“ (Eingang, Diele, Essen, Terrasse) oder eine „Hauptstraße“ (die außenliegende Treppe), die die einzelnen Hausteile wie Elternbereich, Kinderzimmer oder Empore zusätzlich erschließen kann. Auf konventionelle Grundrisse mit kleinen Zimmern wurde verzichtet.
Die Konstruktion ist außen sichtbar: Es wurde ein „Scheibenhaus“ im Mauerwerksbau erstellt – ein Grundtypus für spätere Reihungsversuche im komplexen Mehrfamilienhausbau.








