Archwerk Generalplaner KG

Wohn­haus JM

Villen

Königswinter – DE

1978

Settled

Privat

PROGRAM

VOLUME

LOCATION

YEAR

STATUS

CLIENT

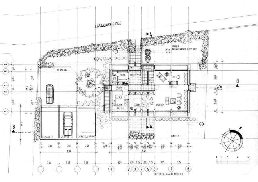
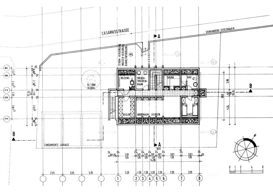
Einfamilienhaus für eine:n Privatauftraggeber:in

Prof. Wolfgang Krenz Architekt:innen

Prinz-Regent-Straße 50-60

44795 Bochum, DE

fon 0234‌ 541 612 0

www.archwerk.org

mail@archwerk.org