Wohnen im Park
Housing
10.000.000 €
Bochum – DE
2012
On Hold
Investor
PROGRAM
VOLUME
LOCATION
YEAR
STATUS
CLIENT
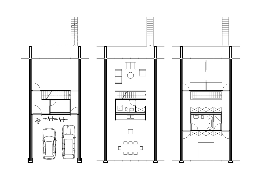
Neubau Wohnanlage, Querenburger Straße 42-47, Bochum
Konzeption innenstadtnahe Wohnanlage für rd. 100 Wohneinheiten mit Stadtvillen, Reihenhäusern und Geschosswohnungsbau.






