Archwerk Generalplaner KG

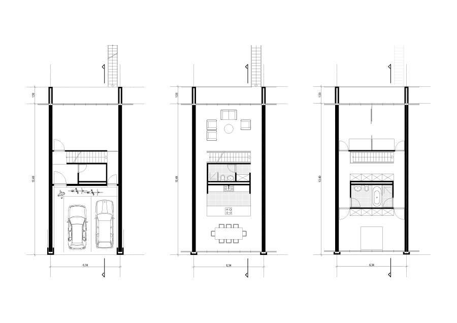
Stadt­haus

Typ-L

Villen

2012

On Hold

PROGRAM

VOLUME

LOCATION

YEAR

STATUS

CLIENT

Projektentwicklung

Stadthaus, Städte- und Siedlungsbau

Prof. Wolfgang Krenz Architekt:innen

Prinz-Regent-Straße 50-60

44795 Bochum, DE

fon 0234‌ 541 612 0

www.archwerk.org

mail@archwerk.org