Archwerk Generalplaner KG

Haus R1

Housing

1.500.000 €

Bonn – DE

1999

Settled

Privater Bauherr

PROGRAM

VOLUME

LOCATION

YEAR

STATUS

CLIENT

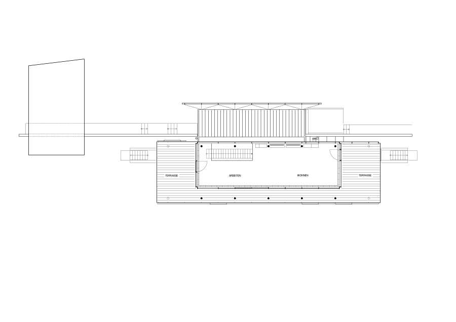
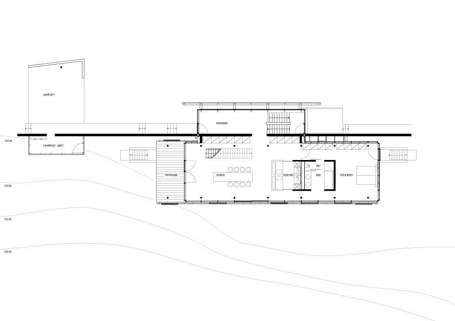
Wohnhaus für einen privaten Bauherrn in Bonn, Bad-Godesberg

 

Veröffentlicht in »Traumhäuser 2005« und »Wohn!Design 3/2004«

 

Auszeichnung guter Bauten 2000 des BDA Bonn (Anerkennung)

Prof. Wolfgang Krenz Architekt:innen

Prinz-Regent-Straße 50-60

44795 Bochum, DE

fon 0234‌ 541 612 0

www.archwerk.org

mail@archwerk.org